Un projet, une image, une réalisation.

Entreprise individuelle C2A projection
Vous avez un projet, C2A a les solutions pour le mettre en plans ou en images.
Découvrez nos offres
Avec un grand panel de réalisations graphiques, nous sommes à même de répondre à toutes vos attentes.
Prestations disponibles
Projections extérieures :
Image principale de projet, plan de vente 3D, intégration sur site, plan de masse 3D, …

Projections intérieures :
Document de vente d’un projet immobilier, réhabilitions, aménagement, agencement, …

Films et points de vue 3D :
Image à 360° d’un intérieur, vidéo de démonstration d’un projet immobilier, vidéo avec point de vue à 360°, …

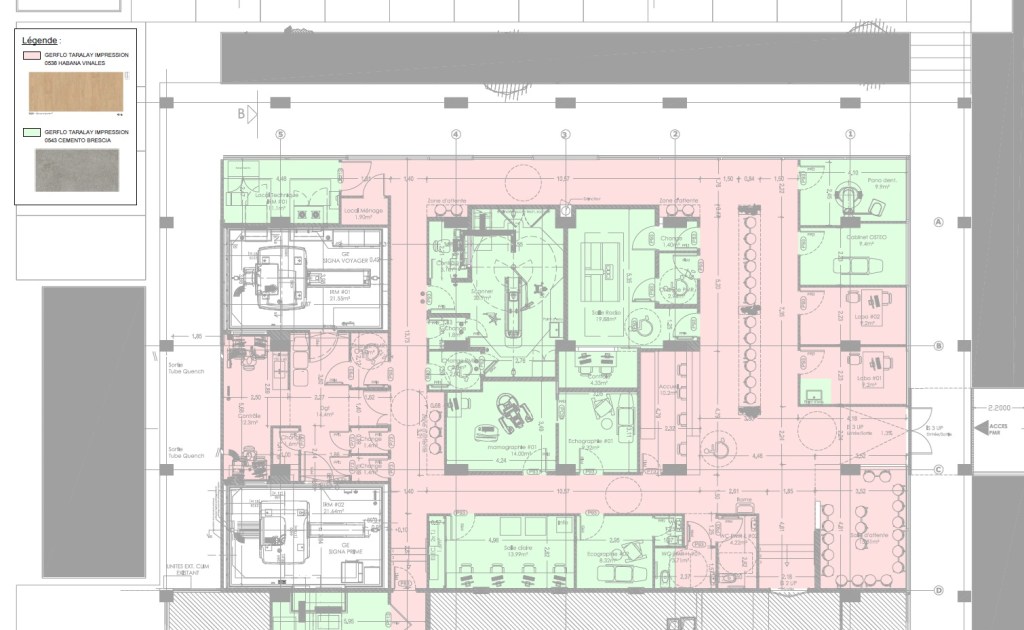
Documents techniques :
Plan d’installation de chantier , plan d’avant projet structure, plan d’exécution structure, plan de détails, …

Dossiers administratifs :
Permis de construire, déclaration préalable, permis de démolir, plans d’aménagement intérieur, …

Plans divers :
Cela peut être un plan de repérage de second œuvre, un plan technique, … suivant vos besoins.
